
皇冠信用盘 | 院务公开 | 招标信息
为了满足皇冠信用盘(中国)官方网站 河西分院患者、家属及周边的需求,提供相关配套服务,现启动皇冠信用盘(中国)官方网站 河西分院下沉式广场第二批次五家商铺招商工作。
一、招商主体及说明
招商主体:南京市宁童实业公司
说明:南京市宁童实业公司系皇冠信用盘(中国)官方网站 投资成立的三产公司,负责皇冠信用盘(中国)官方网站 医疗外第三产业的运营。
二、招商范围
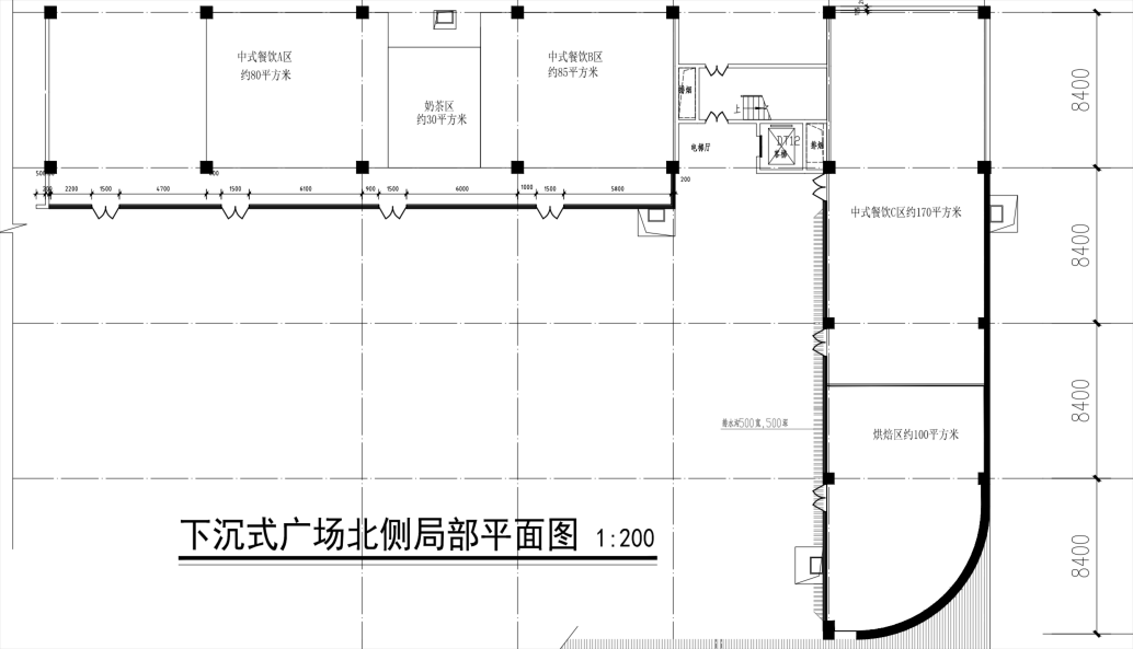
本次招商项目为皇冠信用盘(中国)官方网站 河西分院配套餐饮、零售服务,地址位于南京市建邺区江东南路8号,皇冠信用盘(中国)官方网站 河西分院下沉式广场北侧,招商经营业态为中式餐饮、烘焙、奶茶,具体分布如下图:

注:1、本平面图仅供参考,实际面积以现场为准;
2、本次招商合同年限为3年;
三、准入标准
1.基本条件:
(1)商家性质:公司;
(2)所涉及餐饮业态不使用明火;
2.品牌条件:
1、中式餐饮A区、B区要求为提供综合性餐饮服务的连锁品牌。
2、中式餐饮C区要求提供炒菜功能的中式正餐连锁品牌。
3、奶茶区要求为连锁品牌,包括奶茶、果汁等。
4、烘培区要求为连锁品牌。
5、报名上述业态的品牌注册资金不少于100万元。
3.报名材料:
提供相应资质材料(报名材料):法人代表身份证明、法人授权委托书、营业执照复印件(三证合一)、报名公司系加盟性质的,还需提供在有效期内的品牌授权书。上述复印件均需加盖单位公章。
四、合作要求
(1)与皇冠信用盘(中国)官方网站 和南京市宁童实业公司在既往的合作中无任何资金拖欠、失信行为或其他有争议未达成一致事项。
(2)需在南京市宁童实业公司提供的合同范本基础上进行商务洽谈,合同履行过程中需接受南京市宁童实业公司开出的相应票据、收据。
(3)诚实守信,按时足量缴纳合作费用,依法缴纳各项税收,出具相关票据,不偷逃税款。
(4)需接受现有的水电、暖通等硬件物业条件。
注:所有业态配备上下水、油烟主管道、集中隔油设备;其中中式餐饮A区、B区配备100KW电量;中式餐饮C区配备120KW电量;烘焙区配备100KW电量;奶茶区配备25KW电量。
四、招商方式及流程
本次招商采取公开竞争,择优选择的方式,工作流程为:
报名登记——资质审核——招商洽谈——发放招标材料——商家编制提交投标材料——评审择优——确定中标商家——签订协议。
五、报名登记时间
2016年9月19日始截止时间为2016年9月26日17:00,逾期不再接受报名。(工作日接待时间8:30-12:00;14:00-17:00)
联系单位:南京市宁童实业公司
联系地址:南京市广州路72号5号楼2楼
联系电话:18951769772
联系人:张女士
广州路院区:南京市鼓楼区广州路72号 河西院区:南京市建邺区江东南路8号
皇冠信用盘(中国)官方网站 版权所有
@2008-2019 hgtrustbet.com All rights reserved 备案号:苏ICP备05036229号-1
苏公网安备32010502011205号